Bydlení pro 21. století – prefabrikované domy
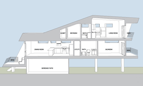
Společnost Graft Architects navrhla v rámci programu „make it right“ probíhajícího v americkém New Orleans nový typ ekologických domů inspirovaných v americké tradici tzv. „shotgun houses„. Jsou reakcí na nedávné rozsáhlé povodně, které město prakticky zničily. Domy jsou proto postaveny zhruba metr a půl nad zemí.
Pokud člověk vystoupí po schodek do prvního patra, otevře se před ním otevřený prostor, který slouží zároveň jako kuchyně, obývací pokoj a jídelna. Ačkoliv celý dům vzniká jako prefabrikovaný modul mimo svou finální destinaci, vnitřek je poměrně modulární a lze jej snadno přizpůsobovat.

Zároveň jde o domy opatřené platinovým LEED certifikátem. Energii domu dodávají solární panely umístěné na ploché střeše, ke kterým je snadný přístup kvůli údržbě.







Jako dům je velice moderní a zajimavý. Ale, při stavbě musí být hodně techniky, jeřáb a plno nákladních aut, nemluvě o množství stavebního materiálu. Vytápění také nebude jen tak. To nemluvím o finančních nákladech na stavbu, vzhledem k velikosti budou asi hodně vysoké. A také konečný efekt – bydlení, hned, po deseti letech a dalších deseti letech. A nebo to je jen ukázka k nasrání sousedů a uvnitř napětí a deprese. Musíme si uvědomit, že toto vzniká už při první čáře na výkrese přes stavební firmu a ve finále na uživatelích. Asi bych si ho dal spíš jako raritu k „vláčku“ a bydlet bych vněm určitě nechtěl.
ja ho mam taky ale v jiny barve
Takovej barak mam
RE: Jan Horčík
Ale když mi tam máme chlapa, kterej má opravdu problém. A na toho se smát nebudu. :) Ale prej už jeve výpovědní lhůtě. ;)
Jj, to jsou přesně ony. Z mého pohledu je tohle tak trochu „facelift“. :-) Základní vzhledové linie jsou velmi obdobné.
vd: Předpokládám, že máš na mysli „Šumperáky“. Ty vypadají hrozně. :o) Byť historie kolem „Šumperáku“ je zajímavá.
Co se týče těchto baráčků. Mně se to líbí. Ale do historické zástavby Štramberku by mě s tím nepustili. :o)
Tohle už kdysi dělali komouši. Nevím jak jinde, ale ve Slezsku je to docela rozšířené a vypadá to hrozně.
re: milhouse – já myslím že kdybyste se na paní na úřadě pár dnů hezky smál tak by to nezakázala :D
Tohle se mi opravdu líbí. Získáte tím garáž, možnost se schovat za deště a být venku, velkou plochu pro cokoliv a nemuset se schovávat před deštěm.
Mylím si ale, že pokud bych něco takového chtěl u nás v republice, stavební úřad by to zakázal, protože to je urbanisticky jiný, než vše okolo.
Co myslíte vy?